TÖBBRÉTEGŰ TÍPUSÚ ROBOTPARKOLÓ AUTOMATA PARKOLÁSI RENDSZER

Ez a fajta parkoló alkalmas földalatti és föld feletti helyekre, könnyen alakítható a rendelkezésre álló helynek megfelelően.
Ez egy automatizált rendszer, amely egyszerre több autót is képes felvenni vagy átadni, közepes és nagy parkolókba is alkalmas rendszer.
Az autók a földszinten parkolnak egy emelvényen, ahonnan a rendszer felveszi és függőlegesen és vízszintesen mozgó liftek és kocsik segítségével a parkolóbokszba szállítja őket. Az autók parkolása és felvétele a földszinten történik, és nagyon kevés időt vesz igénybe, emellett az autó a kijárat felé fordul, hogy megkönnyítse az indulást.
A platformok működését és vezérlését PLC végzi, és teljesen automatizált / számítógépes, emberi beavatkozás nélkül.
Az automatizált parkolókártya típusai: kisméretű, szedán, kombi és SUV számára
TORONY TÍPUSÚ ROBOTPARKOLÓ AUTOMATIZÁLT PARKOLÁSI RENDSZER

Ez a fajta parkolórendszer olyan parkolókhoz vagy épületekhez alkalmas, amelyek nagy parkolóhelyet igényelnek kis vízszintes helyeken, az ilyen típusú rendszer alapterülete 3 parkolóhely lehet, 50 négyzetméteres területen.
Ez egy teljesen automatizált rendszer, amely csak egy autót tud felvenni vagy átadni, de az egyik leggyorsabb és legkönnyebben karbantartható.
Az autók egy emelvényen parkolnak, amely lift segítségével függőlegesen mozog a raktárba és vissza.
A rendszer konfigurálható és többféle lehet a bejárati területtől függően: bejárat alul, középen vagy felül.
A rendszer működését és vezérlését PLC végzi, és automatizált/számítógépes, emberi beavatkozás nélkül.
Az automatizált parkolókártya típusai: kisméretű, szedán, kombi és SUV számára
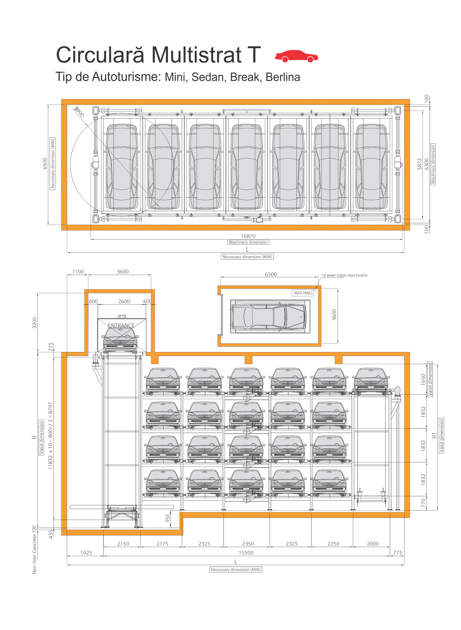
TÖBBRÉTEGŰ KERINGÉSI TÍPUS ROBOTPARKOLÓ AUTOMATIZÁLT PARKOLÁSI RENDSZER


A TÖBBRÉTEGŰ KERINGÉSI TÍPUS ROBOTPARKOLÓ AUTOMATIZÁLT PARKOLÁSI RENDSZER kisebb számú autó parkolására ajánlott, kisebb-közepes méretű épületekhez javasolt.
Helytakarékosság szempontjából a legjobb rendszer, maximum 6 rétegben (szintben) készíthető.
Lassabb rendszerről van szó, a kocsik a peronon, körkörösen, 2 db lift segítségével és a peronok csúsztatásával kerülnek szállításra.
Az operációs rendszer automatizált, így időt takarít meg emberi beavatkozás nélkül.
Az automatizált parkolókártya típusai: kisméretű, szedán, kombi és SUV számára
FORGÓ TÍPUSÚ ROBOTPARKOLÓ AUTOMATIZÁLT PARKOLÓRENDSZER


Nyílt terekhez és kis parkolórendszerekhez korlátozott számú, 8 vagy 16 autós parkolóhelyekkel.
A forgórendszer a legrégebbi feltalált automata parkolórendszer, de egyben a legkönnyebben használható is.
Az autó bejut egy ketrecbe, amely bezárás után az autóval együtt forog.
Egy ilyen rendszer egyszerűen és gyorsan telepíthető 2 autó parkolóhelyére.
Ez egy egyszerű és könnyen használható rendszer.



















